您好,欢迎光临江苏力之创特种装备制造有限公司官方网站
设为首页
|
加入收藏
首 页
关于我们
企业动态
产品中心
荣誉资质
工程案例
企业相册
营销网络
人才招聘
联系我们
热门关键词:
荣誉资质
公司简介
企业动态
产品中心
荣誉资质
工程案例
营销网络
企业相册
人才招聘
联系我们
联系我们
江苏力之创特种装备制造有限公司
厂址:江苏省泰州市高港科创园创业大道北侧
电话:0523-89500388
传真:0523-89500288
邮编:225322
网址:http://www.js-lzc.com
当前位置:
首页
>
关于我们
>
荣誉资质
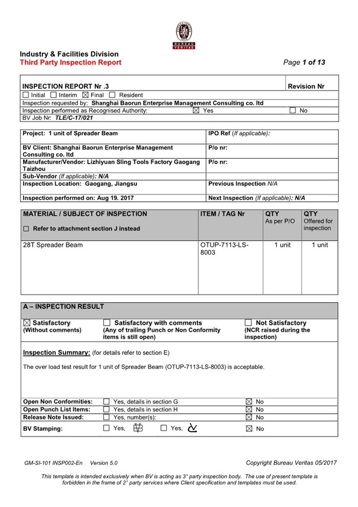
BV
更新时间:
2018-01-08 10:17:24
点击次数:
2152次
字号:
T
|
T
相关介绍
上一篇:
CE证书
下一篇:
BV
收藏
打印